

分离式结构,易于安装,便于操作
铁芯可分割,精度高,磁路损耗小
用于线路和设备的电流测量、监控、和保护
内部窗口大,可以穿过夹钳、电缆或汇流排
| 参 数 | 符 号 | 指 标 |
|---|---|---|
| 额定输入电流 | In | 100A~5000A |
| 额定输出电流 | Io | 1A,5A |
| 额定负载 | RL | 1VA~30VA |
| 精度等级 | ρ | 0.5、1.0 、1.5级 |
| 短时热电流 | - | 20×In |
| 工频耐压 | Vd | 3000V AC/1min |
| 绝缘电阻 | - | ≥1000MΩ/500V AC |
| 工作温度 | Ta | -25℃ ~ +75℃ |
| 环境湿度 | - | ≤85% |
| 工作频率 | f | 50~60Hz |
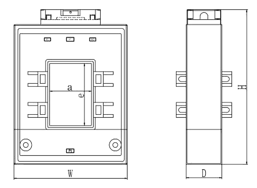
| 产品尺寸 | 外形尺寸 | 穿孔尺寸 | |||
|---|---|---|---|---|---|
| W | H | D | a | e | |
| TRDP-30*20 | 90 | 114 | 40 | 22 | 32 |
| TRDP-60*40 | 114 | 140 | 36 | 42 | 62 |
| TRDP-80*50 | 122 | 160 | 40 | 52 | 82 |
| TRDP-80*80 | 144 | 160 | 36 | 82 | 82 |
| TRDP-100*50 | 144 | 190 | 48 | 52 | 102 |
| TRDP-120*80 | 152 | 200 | 40 | 82 | 122 |
| TRDP-140*60 | 164 | 234 | 52 | 62 | 142 |
| TRDP-160*80 | 184 | 254 | 52 | 82 | 162 |

开口电流互感器安装前必须将其二次与电表(或其他测量装置)接好,确保互感器二次没有开路
将所有接好二次线的开口电流互感器放置现场,等待安装
若现场一次母线为电缆,可进行带电安装;若一次母线为铜排,则带电操作对操作者要求熟练程度比较高,且要求做好绝缘防护措施
安装互感器时,铁芯切面处不得有杂质、灰尘等异物落入,以免影响互感器性能